Váš domov. Vaše
pravidlá. Kdekľovek.
Prémiový komfort bez kompromisov s vlastnou terasou.
28 m²
Podlahová plocha
1
Kuchyňa + obývačka
1
Spálňa
1
Kúpeľňa
1
Terasa
Moderný domov s terasou a charakterom
Predstavte si priestor, kde sa moderný dizajn stretáva s funkčnosťou – to je Apple Kabína LUX. Táto 40-stopová prémiová kabína vznikla na základe inovatívnych konštrukčných riešení a ponúka plnohodnotné, celoročné bývanie priamo na vašom pozemku. S rozlohou 28 m², kompletnou kúpeľňou, modernou kuchyňou a klimatizačným systémom Midea 2P poskytuje Apple Kabína LUX komfort, ktorý výrazne presahuje bežné očakávania.
Kabína je navrhnutá tak, aby ste mohli žiť naplno – bez kompromisov. Teplá voda, vykurovanie, izolačné dvojsklo LOW-E a kvalitná polyuretánová izolácia zabezpečia, že interiér zostane teplý v zime a príjemne chladný v lete. Vonkajšia terasa s rozmermi 11 500 × 2 200 mm a WPC podlahou prirodzene rozširuje obytný priestor a prepája interiér s exteriérom.
Apple Kabína LUX sa predáva ako turnkey riešenie – všetko je zahrnuté v cene, vrátane kompletného interiérového vybavenia, farebného prevedenia a povrchových úprav. Dodanie zabezpečíme do 90 dní od uhradenia 50 % zálohy. Apple Kabína LUX nie je len domček – je to váš nový začiatok.
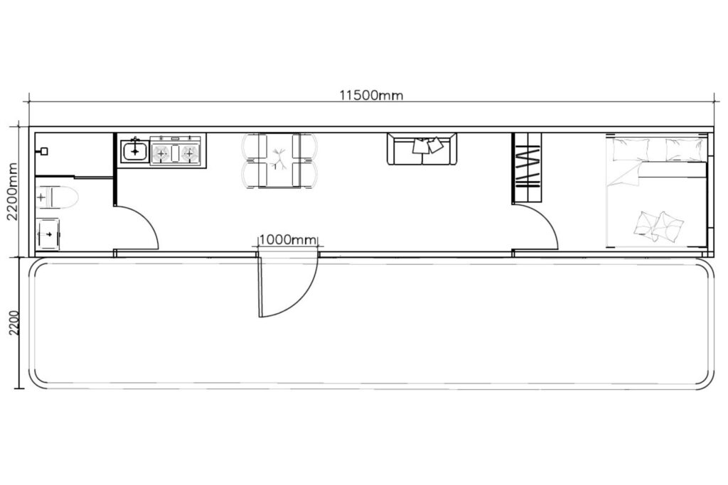
Pôdorys a rozloženie priestorov
Premyslené riešenie pre pohodlné bývanie

Obývacia časť
Otvorený obytný priestor s integrovanou kuchyňou a jedálenskou časťou.
Kúpeľňa
Funkčná kúpeľňa s oddelenou mokrou a suchou zónou.
Spálňa
Poskytujúca súkromie a komfort pre každodenné bývanie.
Terasa
Ako prirodzené pokračovanie domova smerom von.
Technické špecifikácie
Celoročné bývanie s terasou
Konštrukcia
- Hlavný rám je vyrobený z pozinkovanej štvorcovej oceľovej rúry Q235 s rozmermi 100 × 100 × 2,5 mm, čo zabezpečuje vysokú pevnosť a odolnosť voči korózii.
- Stĺpy sú doplnené o diagonálne vystuženie a rohy rámu sú riešené polkruhovými spojmi (100 × 100 × 2,5 mm), vďaka čomu je konštrukcia stabilná aj pri silnom vetre.
- Podlahová konštrukcia pozostáva z 18 mm tlakovo spracovanej cementovej dosky (ohňovzdorná trieda A) a 75 mm minerálnej vlny, čo zaručuje pevnosť a tepelný komfort.
- Strop je vystužený štvorcovou rúrkou 50 × 100 × 1,5 mm a izolovaný 75 mm minerálnou vlnou, čím sa minimalizujú tepelné straty.
- Okenné rámy sú spevnené profilmi 40 × 80 × 1,5 mm a strešná konštrukcia rúrkou 50 × 100 × 1,5 mm, vďaka čomu kabína odoláva aj vyššiemu zaťaženiu snehom.
Energie & vykurovanie
- Elektroinštalácia je riešená hlavným vodičom 6 mm² a odbočnými vodičmi 2,5 mm² a 1,5 mm², čo zabezpečuje dostatočnú kapacitu a bezpečnú prevádzku všetkých elektrických zariadení.
- Klimatizačný systém Midea 2P zabezpečuje efektívne vykurovanie aj chladenie celého priestoru, a teda komfort počas celého roka.
- V kúpeľni je inštalovaný prietokový ohrievač vody, ktorý poskytuje stálu teplú vodu bez potreby veľkého bojlera a šetrí tak priestor aj energiu.
- Celá kabína je izolovaná 50 mm polyuretánovou izoláciou v stenách a 75 mm minerálnou vlnou v podlahe a strope, čím sa výrazne znižujú energetické straty.
Okná & inštalácie
- Hliníkové okná s vonkajším otváraním a LOW-E dvojsklom (5 + 12 + 5 mm) poskytujú vysokú tepelnú izoláciu aj pri nízkych teplotách.
- Každé okno je vybavené sieťkou proti hmyzu, čo zvyšuje komfort bývania najmä v letných mesiacoch.
- Vchodové dvere sú vyrobené z hliníka s prerušeným tepelným mostom a dutým tvrdeným sklom, doplnené o inteligentný zámok, vďaka ktorému môžete zabezpečenie domácnosti pohodlne ovládať aj prostredníctvom smartfónu.
- Osvetlenie v celej kabíne je riešené LED stropnými svietidlami s možnosťou doplnenia bodového alebo lineárneho osvetlenia podľa vašich preferencií.
Materiály a povrchové úpravy
Odolné riešenia pre interiér aj exteriér

Podlahy
Podlahu tvorí 18 mm tlakovo spracovaná cementová doska s ohňovzdornou triedou A. Pod ňou sa nachádza 75 mm vrstva minerálnej vlny, ktorá zabezpečuje tepelný komfort aj v náročných klimatických podmienkach.
Vnútorné steny sú obložené 8 mm bambusovou vláknitou doskou, ktorá dodáva interiéru prírodný a ekologický charakter.

Kuchyňa
Kuchyňa je navrhnutá ako 3-metrový otvorený priestor s pracovnou doskou z umelého mramoru, ktorá je elegantná a ľahko udržiavateľná. Súčasťou kuchyne sú spodné aj horné skrinky, nerezový drez s batériou a digestor – všetko pre pohodlné každodenné varenie.

Sanitárna technika
Kúpeľňa je riešená kombináciou suchých a mokrých zón. Priečky a dvere sú vyrobené z titánovo-horčíkovej zliatiny, ktorá zabezpečuje vysokú odolnosť a elegantný vzhľad.
Súčasťou kúpeľne je toaleta, keramické umývadlo a sprchovací kút. Teplú vodu zabezpečuje prietokový ohrievač. Kúpeľňa je plne funkčná a pripravená na používanie od prvého dňa.

Fasáda
Vonkajšia fasáda kabíny je obložená 0,8 mm vlnitým oceľovým plechom, chráneným proti poveternostným vplyvom. Vodotesná páska zabezpečuje hermetickú ochranu pred vlhkosťou.
Terasa s rozmermi 11 500 × 2 200 mm je vybavená WPC vodeodolnou podlahou a oceľovým zábradlím v antracitovej farbe, čo dodáva exteriéru moderný a elegantný vzhľad.
Voliteľné vylepšenia
Prispôsobte si dom podľa svojich potrieb
Solárne panely
Fotovoltický systém 5 kWp s batériovým úložiskom pre vyššiu energetickú nezávislosť.
Solárne panely
Fotovoltický systém 5 kWp s batériovým úložiskom pre vyššiu energetickú nezávislosť.
Solárne panely
Fotovoltický systém 5 kWp s batériovým úložiskom pre vyššiu energetickú nezávislosť.
Solárne panely
Fotovoltický systém 5 kWp s batériovým úložiskom pre vyššiu energetickú nezávislosť.
Solárne panely
Fotovoltický systém 5 kWp s batériovým úložiskom pre vyššiu energetickú nezávislosť.
Solárne panely
Fotovoltický systém 5 kWp s batériovým úložiskom pre vyššiu energetickú nezávislosť.
Dodanie a inštalácia
Jednoduchý proces od prvého kontaktu až po odovzdanie
Konzultácia
Kontaktujte nás pre konzultáciu detailov alebo dohodnutie osobnej obhliadky. Radi vám poskytneme všetky informácie.
Dokumenty & obhliadka
K dispozícii je kompletná dokumentácia k ponúkaným modelom. Po dohode je možné osobné stretnutie a obhliadka domu naživo.
Uzatvorenie objednávky
Po odsúhlasení podmienok a ceny nasleduje finalizácia kúpy a dohoda o termíne dodania a montáže.
Doprava & montáž
Ponúkame profesionálne dodanie a montáž za príplatok, alebo detailný videonávod pre samostatnú realizáciu.
Na konštrukciu a materiály
V rozsahu záruky
Podklady a manuály
Cena a financovanie
Transparentná cena bez skrytých poplatkov
Základná cena Apple Kabína LUX
€29,890
bez DPH
- Kompletný dom + terasa
- 2-ročná záruka na konštrukciu a použité materiály
- Voliteľné služby (za príplatok): doprava
Platobné podmienky
- 50 % záloha pri odsúhlasení objednávky
- 50 % doplatok pred dodaním domu
Nezahrnuté v cene
- Príprava pozemku a základovej dosky
- Prípojky inžinierskych sietí
- Terénne úpravy a oplotenie
- Individuálne alebo voliteľné vylepšenia
Porovnajte s inými modelmi
Možno vás zaujmú aj ďalšie modely z ponuky Dortun Modulárne Domy

Apple Kabína TERRA
Moderné bývanie s kompletným vybavením a terasou.
13 m² + terasa

Apple Kabína LUX
Prémiový komfort bez kompromisov s vlastnou terasou.
28 m² + terasa
€29,890 bez DPH

Dom HARMÓNIA PREMIUM
Kvalitné bývanie s premyslenými detailmi pre každodenný komfort.
37 m² + krytý vchod
Ste pripravení urobiť prvý krok?
Kontaktujte nás pre bezplatnú konzultáciu a získajte detailnú cenovú ponuku presne podľa vašich potrieb.
- Odpoveď do 48 hodín
- Nezáväzná cenová ponuka
- Odborná konzultácia
Kontaktujte nás
Zaujíma vás viac o dome, doprave alebo obhliadke?
Ozvite sa nám cez formulár nižšie, telefonicky, e-mailom alebo sa dohodnite na osobnej návšteve.
Navštívte nás
Novozámocká cesta 1192/59
946 51 Nesvady
Zavolajte nám
+421 905 723 602









